Stanovi

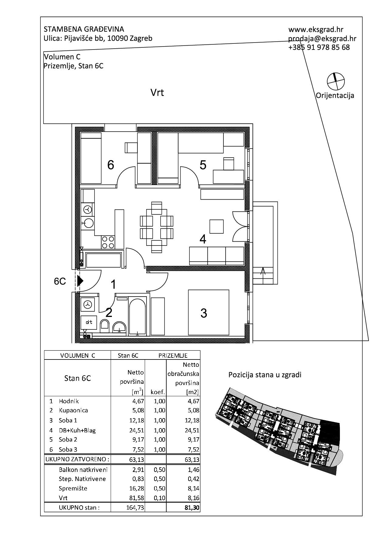
STAN: 6C

ETAŽA
Prizemlje
VELIČINA STANA
Četverosobni
KVADRATURA
81.30 m2
CIJENA
PARKIRNO MJESTO
Po cijeni od: -
INFO I REZERVACIJE: