Stanovi

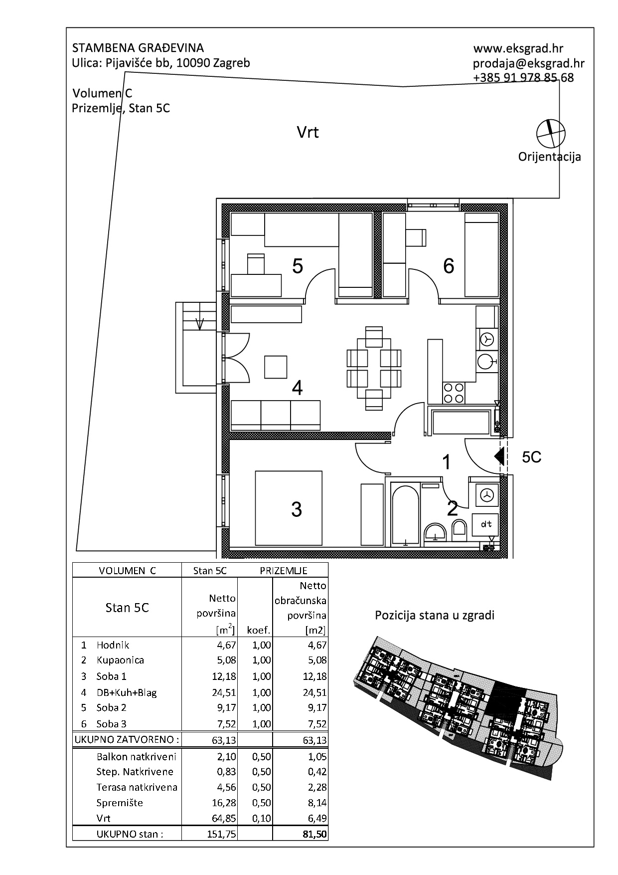
STAN: 5C

ETAŽA
Prizemlje
VELIČINA STANA
Četverosobni
KVADRATURA
81.5 m2
CIJENA
284.490,00 € m2
PARKIRNO MJESTO
Po cijeni od: 12.000,00
INFO I REZERVACIJE: