Stanovi

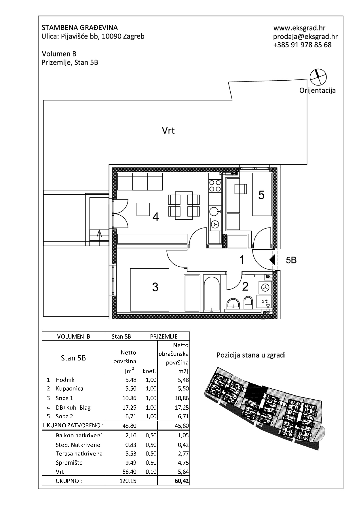
STAN: 5B

ETAŽA
Prizemlje
VELIČINA STANA
Trosobni
KVADRATURA
60.42 m2
CIJENA
223.490,00 € m2
PARKIRNO MJESTO
Po cijeni od: 12.000,00
INFO I REZERVACIJE: