Stanovi

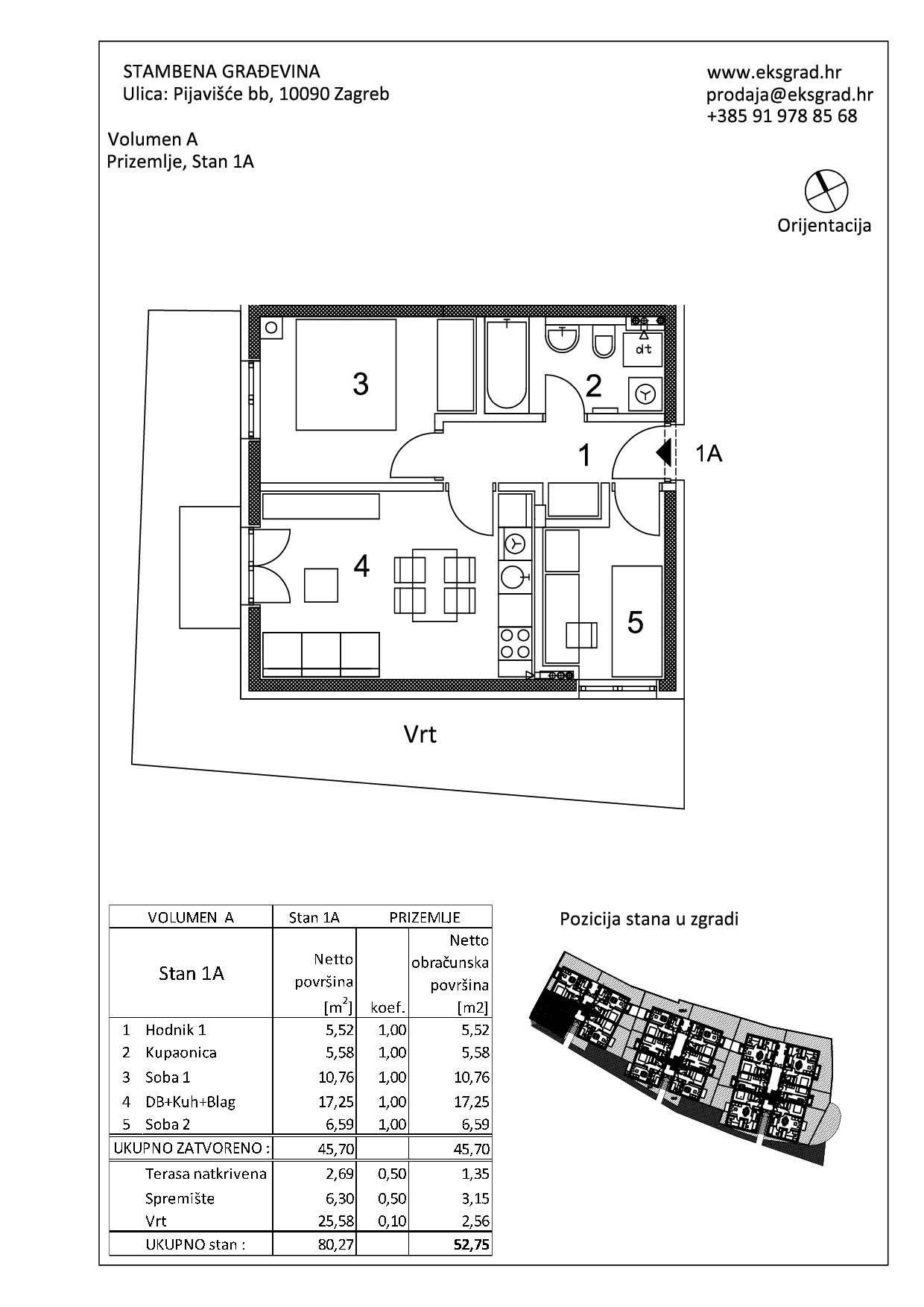
STAN: 1A

ETAŽA
Prizemlje
VELIČINA STANA
Trosobni
KVADRATURA
52.75 m2
CIJENA
PARKIRNO MJESTO
Po cijeni od: -
INFO I REZERVACIJE: