Stanovi

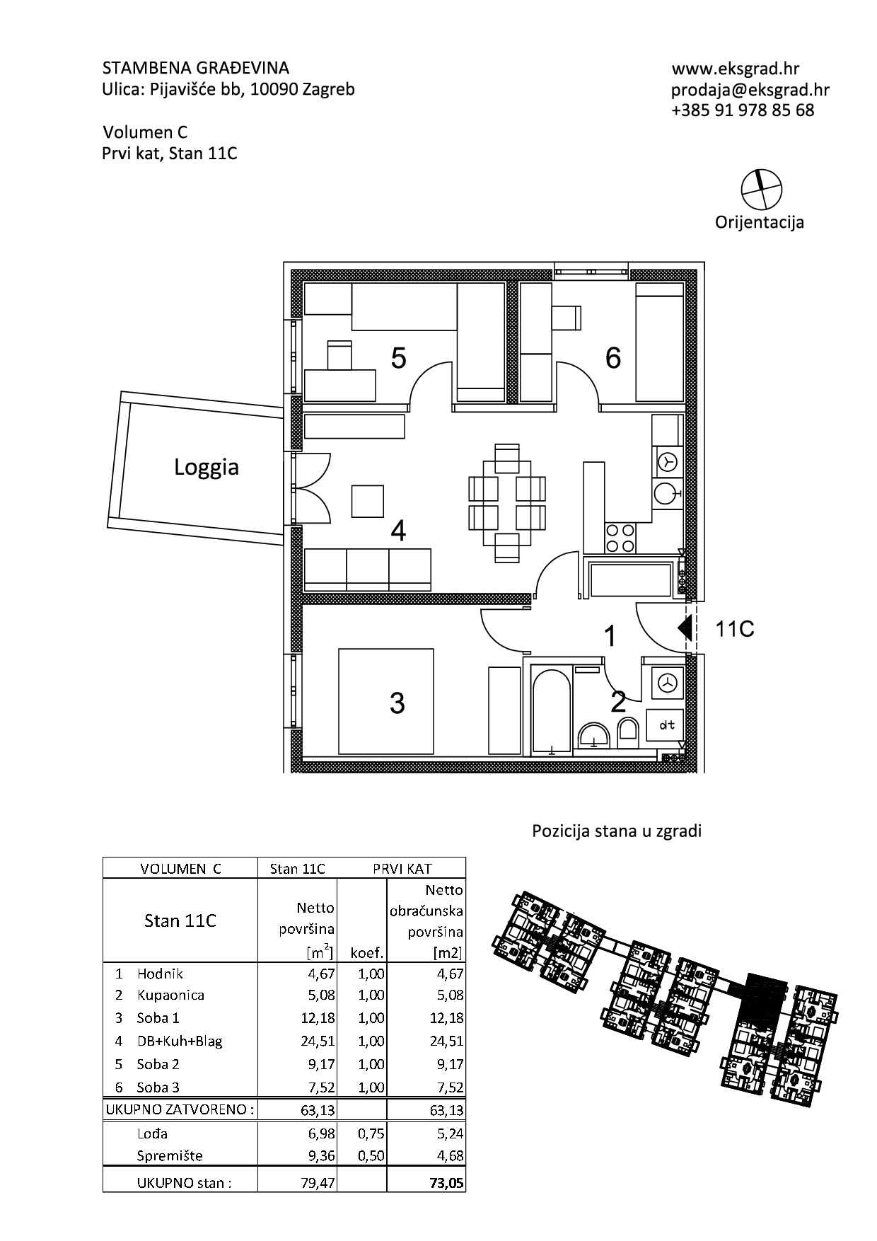
STAN: 11C

ETAŽA
1.kat
VELIČINA STANA
Četverosobni
KVADRATURA
73.05 m2
CIJENA
259.490,00 € m2
PARKIRNO MJESTO
Po cijeni od: 12.000,00
INFO I REZERVACIJE: